一、管廊布置的(de)一般要求


  ①. 管(guan)(guan)(guan)廊應處于易與(yu)各類主(zhu)要設(she)備聯系的(de)位置上。要考慮能使多數管(guan)(guan)(guan)線布(bu)置合理,少繞行,以減少管(guan)(guan)(guan)線長度。典型的(de)位置是在兩排(pai)設(she)備的(de)中間或一排(pai)設(she)備的(de)旁側。


  ②. 布置(zhi)管廊(lang)要綜合考慮道(dao)(dao)路(lu)、消防的(de)需要,以及(ji)地下(xia)管道(dao)(dao)與電纜布置(zhi)和臨近建、構筑物(wu)等(deng)情況,并避開大、中型設備(bei)的(de)檢修場(chang)地。


  ③. 管廊上部可(ke)以布置(zhi)空冷器、小(xiao)型(xing)設備、操作閥組平臺、儀表和電氣電纜槽(cao)等,下部可(ke)以布置(zhi)泵等設備。


  ④. 管(guan)廊上設有的閥門需要操作或檢修時,應(ying)設置人(ren)行走道(dao)或局部操作平臺。



二、管廊軸向柱距的設計


  ①. 管廊軸向柱距由敷(fu)設在其上的管道因垂直載(zai)荷所產生的彎(wan)曲應力和撓度(du)決定的。


  ②. 根據(ju)管(guan)(guan)段不(bu)應在(zai)輕微外界(jie)擾力(li)作用下(xia)發(fa)生明顯振動的要求(qiu),規定裝(zhuang)置(zhi)內(nei)(nei)管(guan)(guan)道的固有振動頻率宜不(bu)低于4次(ci)/s,裝(zhuang)置(zhi)外管(guan)(guan)段的自由(you)振動頻率不(bu)低于2.55次(ci)/s,由(you)此規定得出兩支架間管(guan)(guan)道允許撓度f,裝(zhuang)置(zhi)內(nei)(nei)為(wei)15mm,裝(zhuang)置(zhi)外為(wei)38mm。


  ③. 管廊軸向柱距通常(chang)為(wei)6~9m,如中、小(xiao)直(zhi)徑管道(dao)較多時(shi),可在支柱之間(jian)設置副梁以滿足管道(dao)跨距,見圖(tu)3.5。


  ④. 管廊支柱(zhu)的間距,宜與設備框架支柱(zhu)的間距取得一(yi)致(zhi),以便(bian)管道通過(guo)。


5.jpg



三、管(guan)廊橫斷面寬度的(de)設計


  ①. 管(guan)(guan)廊(lang)的寬(kuan)度主要由管(guan)(guan)道(dao)的數(shu)量(liang)(liang)和管(guan)(guan)徑的大(da)小確定(ding)。并考慮(lv)一定(ding)的預留寬(kuan)度,新設(she)(she)計的管(guan)(guan)廊(lang)一般留有擴建預留量(liang)(liang)[全廠性管(guan)(guan)廊(lang)或管(guan)(guan)墩(dun)上(包括穿越涵洞)應(ying)留有10%~30%的裕(yu)量(liang)(liang),裝置主管(guan)(guan)廊(lang)宜留有10%~20%的裕(yu)量(liang)(liang)]。同時要考慮(lv)管(guan)(guan)廊(lang)下(xia)設(she)(she)備和通(tong)道(dao)以(yi)及管(guan)(guan)廊(lang)上空冷設(she)(she)備等(deng)結構的影響。如果要求(qiu)敷設(she)(she)儀表引(yin)線槽(cao)架和電力電纜時,還應(ying)考慮(lv)它們(men)所需的寬(kuan)度。


  ②. 管廊上布置空(kong)冷器時,管廊橫斷面支(zhi)柱跨距最(zui)好與(yu)空(kong)冷器的間距尺寸(cun)相同,以使管廊立柱與(yu)空(kong)冷器支(zhi)柱中心線(xian)對(dui)齊。


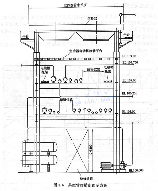
  ③. 管(guan)廊下(xia)(xia)布(bu)(bu)置泵時(shi),應考(kao)慮泵的布(bu)(bu)置及其所需操作和(he)檢修通道(dao)的寬(kuan)度(du),如果泵的驅動機用電(dian)纜地下(xia)(xia)敷設時(shi),還(huan)(huan)應考(kao)慮電(dian)纜溝(gou)(gou)所需寬(kuan)度(du)。此外(wai),還(huan)(huan)要考(kao)慮泵用冷(leng)卻水(shui)管(guan)道(dao)和(he)排水(shui)管(guan)道(dao)的干管(guan)所需寬(kuan)度(du)。不(bu)過(guo),電(dian)纜溝(gou)(gou)和(he)排水(shui)管(guan)道(dao)可以布(bu)(bu)置在通道(dao)的下(xia)(xia)面(mian),見圖3.6。


  ④. 由于整個管廊的管道布置密度(du)并不相同(tong),通常(chang)在(zai)(zai)首尾段的管道數量較少(shao)。因此,在(zai)(zai)必要時可(ke)以減少(shao)首尾段的寬度(du)或(huo)層數。


6.jpg



四、管(guan)廊層高的設計


①. 接(jie)近地面(mian)第一層管廊(lang)的最小凈高的設計


  a. 在道路上空橫穿時,按中(zhong)國國內消防車(che)、運輸(shu)車(che)等一般高度標準,SH規(gui)范的管廊高度布置標準要求(qiu)如下。


   ·裝置(zhi)內管廊距地面(mian)凈空高(gao)(gao)度(du)(du):行車道、消防道和(he)檢修(xiu)通道最小(xiao)(xiao)凈高(gao)(gao)4.5m,泵區檢修(xiu)通道最小(xiao)(xiao)凈高(gao)(gao)3m,操作通道最小(xiao)(xiao)凈高(gao)(gao)2.2m(此高(gao)(gao)度(du)(du)是(shi)飲(yin)用了歐(ou)美國家人的(de)高(gao)(gao)度(du)(du)加(jia)安全帽的(de)高(gao)(gao)度(du)(du)算出(chu)來的(de),日(ri)本操作通道通常為2.0m)。


   ·裝置外跨越廠區的(de)全廠管廊(lang)據(ju)地(di)面凈空高(gao)度(du):跨越鐵(tie)路最小凈高(gao)5.5m,跨越廠內道路最小凈高(gao)5m。


  以(yi)上僅是一般情況下管(guan)(guan)廊的(de)(de)(de)(de)(de)(de)高(gao)度要求,管(guan)(guan)廊的(de)(de)(de)(de)(de)(de)設計(ji)高(gao)度還要結合項目實際情況考(kao)慮全廠的(de)(de)(de)(de)(de)(de)大型設備(bei)的(de)(de)(de)(de)(de)(de)運輸(shu)需要的(de)(de)(de)(de)(de)(de)高(gao)度,再最終確(que)定管(guan)(guan)廊的(de)(de)(de)(de)(de)(de)布置高(gao)度。例如,某新建工廠,根據大件(jian)運輸(shu)的(de)(de)(de)(de)(de)(de)要求,跨(kua)越全廠主干道的(de)(de)(de)(de)(de)(de)管(guan)(guan)廊,距離地面的(de)(de)(de)(de)(de)(de)最小凈空高(gao)度為10m。


  國(guo)外某工程項目,需根據所在國(guo)家的(de)規范(fan)要求設計管廊高(gao)度。例如,蘇聯(俄羅(luo)斯)的(de)消防車(che)一般較(jiao)高(gao),俄羅(luo)斯全廠(chang)管廊距離路面(mian)最(zui)小凈高(gao)為5.5m,比中國(guo)高(gao)0.5m。


  b. 當管廊有桁架時要按桁架底高計算。


  c. 為有(you)效地利(li)用管廊空(kong)間,多(duo)在(zai)管廊下布(bu)置泵。考慮到泵的操(cao)作和維護(hu),宜有(you)4.0m凈空(kong)高(gao)度。


 ②. 管(guan)廊(lang)上管(guan)道與(yu)分區設備相接時(shi),一般應比(bi)管(guan)廊(lang)的(de)底層管(guan)道標高(gao)低或高(gao)600~1000mm。管(guan)廊(lang)下(xia)布(bu)置管(guan)殼式換熱設備時(shi),根(gen)據設備實際高(gao)度需(xu)要增加(jia)管(guan)廊(lang)下(xia)的(de)凈空。


 ③. 管(guan)廊外(wai)設備(bei)的管(guan)道(dao)(dao)進入(ru)管(guan)廊所必需的高(gao)度(du)。若(ruo)為大型裝(zhuang)置,其設備(bei)和管(guan)徑較大,為防止管(guan)道(dao)(dao)出現不(bu)必要的袋形,管(guan)廊最下一層橫梁底(di)標高(gao)應低(di)于設備(bei)管(guan)口500~750mm。


 ④. 若(ruo)管(guan)廊附近有(you)換(huan)熱框架(jia),換(huan)熱設(she)備的下部管(guan)道(dao)要從它的框架(jia)平(ping)臺接往(wang)管(guan)廊,此時至少要保證管(guan)廊的下層橫(heng)梁低于換(huan)熱框架(jia)第(di)一(yi)層平(ping)臺。


 ⑤. 當(dang)管(guan)廊(lang)改變方向或兩管(guan)廊(lang)成直(zhi)(zhi)角(jiao)相交時,管(guan)廊(lang)宜錯層(ceng)布置,錯層(ceng)的(de)高(gao)差(cha)(cha)宜為750~1000mm。當(dang)高(gao)差(cha)(cha)為750mm時,DN250以(yi)下的(de)管(guan)子用兩個直(zhi)(zhi)角(jiao)彎(wan)(wan)(wan)頭和短管(guan)相接(jie)(jie);大于DN250的(de)管(guan)子用一個45°彎(wan)(wan)(wan)頭、一個90°彎(wan)(wan)(wan)頭相接(jie)(jie)。對于大型裝置也可采(cai)用1000mm以(yi)上(shang)的(de)高(gao)差(cha)(cha)。


 ⑥. 在確(que)定管(guan)廊(lang)高(gao)度(du)(du)時,要考(kao)慮到管(guan)廊(lang)橫(heng)梁(liang)和縱(zong)梁(liang)的(de)(de)結(jie)構斷面和形式,務必使梁(liang)底(di)或桁架底(di)的(de)(de)高(gao)度(du)(du)滿足(zu)上(shang)述(shu)確(que)定管(guan)廊(lang)高(gao)度(du)(du)的(de)(de)要求。對(dui)于(yu)(yu)(yu)雙層管(guan)廊(lang),上(shang)下層間距一(yi)般為(wei)1.5~2.0m,對(dui)于(yu)(yu)(yu)大型裝(zhuang)置(zhi)上(shang)下層間距可為(wei)2.5~3.0m,主要取決于(yu)(yu)(yu)管(guan)廊(lang)上(shang)最大口徑(jing)的(de)(de)管(guan)道。


 ⑦. 裝置之(zhi)間(jian)的(de)管(guan)(guan)廊高(gao)(gao)度取決于管(guan)(guan)廊地區(qu)(qu)的(de)具體(ti)情(qing)況,如沿工廠邊(bian)緣(yuan)或罐區(qu)(qu),不會(hui)影(ying)響廠區(qu)(qu)交通和擴(kuo)建的(de)地段(duan),從經濟性和檢(jian)修方(fang)便考慮,可(ke)用管(guan)(guan)墩(dun)敷設,離地面高(gao)(gao)300~500mm,即可(ke)滿足要(yao)求。


五、管墩(dun)的設計


 圖3.7 常(chang)壓(ya)罐區的管墩設計


  ①. 管(guan)墩的(de)間(jian)距按管(guan)徑(jing)最小(xiao)的(de)管(guan)道(dao)允許跨距進行設置。


  ②. 管(guan)墩頂距地面(mian)一般不宜小于0.4m,見圖3.7。


7.jpg


六(liu)、混凝土管廊(管墩)梁頂預埋件


  混凝土管(guan)廊(lang)(管(guan)墩)的(de)(de)(de)梁(liang)頂應(ying)設通長(chang)預埋(mai)件(jian),預埋(mai)件(jian)的(de)(de)(de)形式應(ying)符(fu)合國家標準(zhun)SH/T 3055的(de)(de)(de)要求。一般(ban)橫(heng)梁(liang)上應(ying)埋(mai)放一根圓鋼或(huo)鋼板,以(yi)減少管(guan)道與橫(heng)梁(liang)間的(de)(de)(de)摩擦力(li)。


  例如,某(mou)項目在混凝(ning)土管(guan)廊(lang)(管(guan)墩)梁頂上設置預埋(mai)(mai)(mai)件(jian)(jian)時,混凝(ning)土管(guan)廊(lang)(管(guan)墩)梁頂一(yi)般按(an)圖3.8(a)、(b)所(suo)示(shi)設通長預埋(mai)(mai)(mai)件(jian)(jian),當(dang)(dang)管(guan)廊(lang)需要設導向(xiang)架時,預埋(mai)(mai)(mai)件(jian)(jian)采用圖3.8(b)所(suo)示(shi)的(de)形式(shi);當(dang)(dang)管(guan)廊(lang)需要設固定(ding)架時,預埋(mai)(mai)(mai)件(jian)(jian)采用圖3.8(c)所(suo)示(shi)的(de)形式(shi)。


8.jpg


七(qi)、管廊上(shang)儀表電(dian)氣電(dian)纜槽架及巡檢梯子平臺(tai)的布(bu)置


  ①. 如果是(shi)中(zhong)小型(xing)工程項(xiang)目,儀(yi)表(biao)電(dian)氣電(dian)纜槽架(jia)寬度較小,布置(zhi)在管(guan)(guan)廊(lang)內(nei)或者掛在管(guan)(guan)廊(lang)外側面均可,并(bing)保持管(guan)(guan)道與槽架(jia)之間的間距。


  ②. 大中型項目,儀表(biao)電氣電纜槽架(jia)較寬,可能需要占一層(ceng)管廊的空間。電纜槽架(jia)和儀表(biao)槽架(jia)宜(yi)布(bu)置在(zai)上層(ceng),電纜槽架(jia)層(ceng)通常布(bu)置在(zai)火炬管道層(ceng)與公用工程管道層(ceng)之(zhi)間。槽架(jia)的附(fu)近或正下(xia)方不(bu)應布(bu)置有熱影響的管道。


  ③. 對(dui)于全(quan)廠性管廊,有的項目在電纜槽架層設置有全(quan)廠性巡檢通道,并(bing)每隔一定(ding)距離設置一直爬梯到地面(mian)。


工程應用(yong):管(guan)廊柱子基礎與地下管(guan)道、埋地電纜碰撞


  某工程(cheng)在施工管(guan)廊(lang)柱(zhu)子結(jie)構基礎(chu)時才發現,柱(zhu)子基礎(chu)與地下管(guan)道(dao)、埋(mai)地電纜(lan)等大量碰(peng)撞,只能修(xiu)改(gai)管(guan)廊(lang)柱(zhu)子位置(zhi)或者修(xiu)改(gai)地下管(guan)道(dao)位置(zhi)或者修(xiu)改(gai)埋(mai)地電纜(lan)的(de)位置(zhi),造(zao)成多(duo)個專業的(de)設計(ji)文件大面積修(xiu)改(gai)。


建議(yi)在設計階段進行管(guan)廊柱子基礎與地(di)(di)下管(guan)道、埋地(di)(di)電纜碰撞檢查和(he)各(ge)專業的(de)會簽(qian)。


工(gong)程應用:管廊層高偏高引起的設計(ji)不合理


  某石化裝置(zhi)(zhi)施(shi)工完(wan)后,發現(xian)裝置(zhi)(zhi)四周(zhou)的全廠外管(guan)廊(lang)高(gao)達25m,從遠處觀望(wang),外管(guan)廊(lang)全部遮擋住(zhu)了(le)裝置(zhi)(zhi)內塔(ta)及(ji)其他設(she)備,如圖3.9所示。究其原因,發現(xian)在設(she)計(ji)時(shi),管(guan)道間距沒有按照最小管(guan)間距設(she)計(ji),共5層管(guan)廊(lang),大口徑管(guan)道分布在各個管(guan)廊(lang)層高(gao),每層的層高(gao)至(zhi)少設(she)計(ji)成了(le)3m,最大層高(gao)設(she)計(ji)成了(le)5m。筆者嘗試優(you)化后,這(zhe)條管(guan)廊(lang)總高(gao)度(du)至(zhi)少降低8m。


9.jpg


工程應用(yong):管廊柱(zhu)子偏粗的不(bu)合理(li)設計


  在施工現場,某裝置管(guan)(guan)廊(lang)(lang)(lang)(A工程(cheng)公(gong)(gong)司設(she)計)與(yu)鄰近裝置管(guan)(guan)廊(lang)(lang)(lang)(B工程(cheng)公(gong)(gong)司設(she)計)直通(tong)連(lian)接時,發現管(guan)(guan)廊(lang)(lang)(lang)上(shang)的管(guan)(guan)子、電(dian)纜槽架是(shi)一樣(yang)的,管(guan)(guan)廊(lang)(lang)(lang)層高(gao)也(ye)一樣(yang),但是(shi),A工程(cheng)公(gong)(gong)司負責設(she)計的管(guan)(guan)廊(lang)(lang)(lang)柱子尺寸(cun)為800mm×800mm,而B工程(cheng)公(gong)(gong)司設(she)計的管(guan)(guan)廊(lang)(lang)(lang)柱子尺寸(cun)僅有(you)400mm×400mm,差(cha)距非常大。


  經核對設計文件,發(fa)現A工程公司設計的載荷(he)數(shu)據(ju)比正(zheng)常偏(pian)大了(le)很多,引起了(le)管廊柱子(zi)偏(pian)粗的不合理(li)設計。


聯系方式.jpg