①. 一般不銹鋼容器管道受工藝過程和容器結構的約束因素較少,所以不銹鋼管道的敷設重點在操作方便、經濟美觀。


  ②. 不銹鋼容器(qi)的周圍宜分(fen)為配管(guan)區(qu)(qu)和(he)(he)操作區(qu)(qu),不銹鋼管(guan)道布(bu)置在配管(guan)區(qu)(qu),儀表(biao)、人孔和(he)(he)梯(ti)子布(bu)置在操作區(qu)(qu)。


  ③. 不銹(xiu)鋼管道(dao)宜沿著立式(shi)容器的(de)外壁布置,管道(dao)上的(de)閥門(men)應(ying)與(yu)設(she)備(bei)管口直接連(lian)接。


  ④. 臥式(shi)容器下部的(de)管道如果(guo)考慮人員(yuan)通行,管道距操作(zuo)面的(de)凈(jing)空(kong)高度不(bu)應小于2.2m。


  ⑤. 不銹鋼容器底部管道沿地(di)面(mian)敷設時,管道低點排(pai)液口距地(di)面(mian)的凈距不應(ying)小于150mm。


  ⑥. 不(bu)銹鋼容器(qi)管(guan)道配管(guan)設計(ji)應滿足(zu)工(gong)藝要(yao)(yao)求(qiu)。例如,入口管(guan)道避免出現(xian)袋形(xing);有無坡(po)度等要(yao)(yao)求(qiu)。如圖5.27(a)、(b)所示,為(wei)使(shi)停工(gong)時管(guan)內(nei)不(bu)積液(ye),應采用(yong)底平(ping)的(de)異徑管(guan)。如圖5.27(c)、(d)所示,回流油罐(guan)(guan)進泵管(guan)線不(bu)得(de)(de)出現(xian)下(xia)袋形(xing),防(fang)止(zhi)氣阻和汽蝕(shi),防(fang)止(zhi)泵抽(chou)空。如圖5.27所示,初餾和常壓塔(ta)頂回流罐(guan)(guan)的(de)通往(wang)燃料氣的(de)管(guan)線,其(qi)切(qie)斷閥應靠(kao)近設備管(guan)口,管(guan)線不(bu)得(de)(de)出現(xian)袋形(xing),以免積液(ye)影響罐(guan)(guan)內(nei)壓力,在管(guan)線的(de)高點設放空閥。


27.jpg


 ⑦. 優先考慮臥式容器的大口徑不銹鋼管道,然后考慮其他管道,考慮支承,美觀地敷設。


  ⑧. 不銹鋼管道可(ke)在容器(qi)本體(ti)上設置支架。


  ⑨. 從立式容器上(shang)部管(guan)口(kou)下(xia)來(lai)的管(guan)道(dao)和大(da)口(kou)徑不(bu)銹(xiu)鋼管(guan)道(dao)應(ying)優先配置。


  ⑩. 不銹鋼容器安全閥(fa)的配管設計


     a. 按照(zhao)TSG R0004《固定(ding)式壓(ya)(ya)(ya)力(li)(li)容(rong)(rong)(rong)(rong)器(qi)(qi)安(an)(an)全(quan)(quan)技(ji)術(shu)監察(cha)規程(cheng)(cheng)》規定(ding):壓(ya)(ya)(ya)力(li)(li)容(rong)(rong)(rong)(rong)器(qi)(qi)安(an)(an)全(quan)(quan)閥(fa)(fa)應(ying)當(dang)豎直安(an)(an)裝(zhuang)在(zai)(zai)壓(ya)(ya)(ya)力(li)(li)容(rong)(rong)(rong)(rong)器(qi)(qi)液面(mian)以上(shang)氣相空(kong)間(jian)(jian)部分,或(huo)者(zhe)裝(zhuang)設在(zai)(zai)與(yu)壓(ya)(ya)(ya)力(li)(li)容(rong)(rong)(rong)(rong)器(qi)(qi)氣相空(kong)間(jian)(jian)相連(lian)的(de)(de)(de)(de)(de)管道上(shang);壓(ya)(ya)(ya)力(li)(li)容(rong)(rong)(rong)(rong)器(qi)(qi)與(yu)安(an)(an)全(quan)(quan)閥(fa)(fa)之(zhi)(zhi)(zhi)間(jian)(jian)的(de)(de)(de)(de)(de)連(lian)接管和管件的(de)(de)(de)(de)(de)通孔,其(qi)(qi)截(jie)(jie)面(mian)積(ji)(ji)不得小于(yu)安(an)(an)全(quan)(quan)閥(fa)(fa)的(de)(de)(de)(de)(de)進口截(jie)(jie)面(mian)積(ji)(ji),其(qi)(qi)接管應(ying)當(dang)盡(jin)量短而直;壓(ya)(ya)(ya)力(li)(li)容(rong)(rong)(rong)(rong)器(qi)(qi)一個連(lian)接口上(shang)裝(zhuang)設兩(liang)個或(huo)者(zhe)兩(liang)個以上(shang)安(an)(an)全(quan)(quan)閥(fa)(fa)時,則該連(lian)接口入口的(de)(de)(de)(de)(de)截(jie)(jie)面(mian)積(ji)(ji),應(ying)當(dang)至少等于(yu)這些(xie)安(an)(an)全(quan)(quan)閥(fa)(fa)的(de)(de)(de)(de)(de)進口截(jie)(jie)面(mian)積(ji)(ji)總(zong)和;安(an)(an)全(quan)(quan)閥(fa)(fa)與(yu)壓(ya)(ya)(ya)力(li)(li)容(rong)(rong)(rong)(rong)器(qi)(qi)之(zhi)(zhi)(zhi)間(jian)(jian)一般不宜裝(zhuang)設截(jie)(jie)止(zhi)閥(fa)(fa)門;為實現安(an)(an)全(quan)(quan)閥(fa)(fa)的(de)(de)(de)(de)(de)在(zai)(zai)線校驗(yan),可在(zai)(zai)安(an)(an)全(quan)(quan)閥(fa)(fa)與(yu)壓(ya)(ya)(ya)力(li)(li)容(rong)(rong)(rong)(rong)器(qi)(qi)之(zhi)(zhi)(zhi)間(jian)(jian)裝(zhuang)設爆破(po)片裝(zhuang)置(zhi);對于(yu)盛裝(zhuang)毒性程(cheng)(cheng)度(du)(du)為極度(du)(du)、高度(du)(du)、中(zhong)度(du)(du)危害介(jie)質(zhi),易燃介(jie)質(zhi),腐蝕、黏性介(jie)質(zhi)或(huo)者(zhe)貴(gui)重介(jie)質(zhi)的(de)(de)(de)(de)(de)壓(ya)(ya)(ya)力(li)(li)容(rong)(rong)(rong)(rong)器(qi)(qi),為便于(yu)安(an)(an)全(quan)(quan)閥(fa)(fa)的(de)(de)(de)(de)(de)清洗(xi)與(yu)更(geng)換,經過(guo)使用單位(wei)主管壓(ya)(ya)(ya)力(li)(li)容(rong)(rong)(rong)(rong)器(qi)(qi)安(an)(an)全(quan)(quan)技(ji)術(shu)負責人批準,并且制定(ding)可靠的(de)(de)(de)(de)(de)防范措施,方可在(zai)(zai)安(an)(an)全(quan)(quan)閥(fa)(fa)(爆破(po)片裝(zhuang)置(zhi))與(yu)壓(ya)(ya)(ya)力(li)(li)容(rong)(rong)(rong)(rong)器(qi)(qi)之(zhi)(zhi)(zhi)間(jian)(jian)裝(zhuang)設截(jie)(jie)止(zhi)閥(fa)(fa)門,壓(ya)(ya)(ya)力(li)(li)容(rong)(rong)(rong)(rong)器(qi)(qi)正常運行期間(jian)(jian)截(jie)(jie)止(zhi)閥(fa)(fa)門必須保證全(quan)(quan)開(kai)(加鉛封或(huo)者(zhe)鎖(suo)定(ding)),截(jie)(jie)止(zhi)閥(fa)(fa)門的(de)(de)(de)(de)(de)結(jie)構(gou)和通徑不得妨礙安(an)(an)全(quan)(quan)閥(fa)(fa)的(de)(de)(de)(de)(de)安(an)(an)全(quan)(quan)閥(fa)(fa)的(de)(de)(de)(de)(de)安(an)(an)全(quan)(quan)泄放。


     b. 不(bu)銹(xiu)鋼容(rong)器安(an)全閥設計安(an)裝位置靠近容(rong)器的主管位置,遠(yuan)距離設置時,要進行壓降核(he)算(suan)。


     c. 安全閥跳動時,產(chan)生(sheng)推力,應設計(ji)抗推力的(de)支架(jia)。


     d. 排向(xiang)大氣的噴出管口肘部設置淚孔,以便于液體(ti)和雨水排出。排放不(bu)要朝(chao)向(xiang)通道口。


     e. 多個安全閥相鄰安裝時,排(pai)出(chu)管采用集合管形(xing)式。


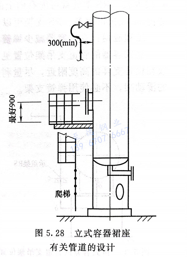
  ?. 立式容器(qi)若采用裙座(zuo)式支撐,容器(qi)底(di)部的所有管(guan)口應采用管(guan)線把接口法蘭(lan)引到裙座(zuo)外側,裙座(zuo)內不得安裝法蘭(lan)和閥門(men)等,見圖5.28。


28.jpg


  ?. 受熱(re)作用的管(guan)道應考(kao)慮其柔性要求。例(li)如(ru),與(yu)離心壓(ya)縮機相接的管(guan)道;儀表用的較長連接管(guan)。


  ?. 產生振動的管道應對支架進行加固。




聯系方式.jpg