某裝置(zhi)內主管廊


  某裝置(zhi)(zhi)內(nei)主(zhu)管(guan)(guan)廊側(ce)面圖,管(guan)(guan)廊主(zhu)體(ti)總長203m,寬13m,頂層標高(gao)(gao)22m,其中管(guan)(guan)廊上設(she)備框(kuang)架最高(gao)(gao)處距地標高(gao)(gao)38m。主(zhu)管(guan)(guan)廊大(da)約布置(zhi)(zhi)了兩千多條管(guan)(guan)線。圖5-8加粗部分為主(zhu)管(guan)(guan)廊在(zai)整個裝置(zhi)(zhi)區內(nei)的位(wei)置(zhi)(zhi),圖5-9是一(yi)小(xiao)段主(zhu)管(guan)(guan)廊結(jie)構(gou)側(ce)面結(jie)構(gou)圖。


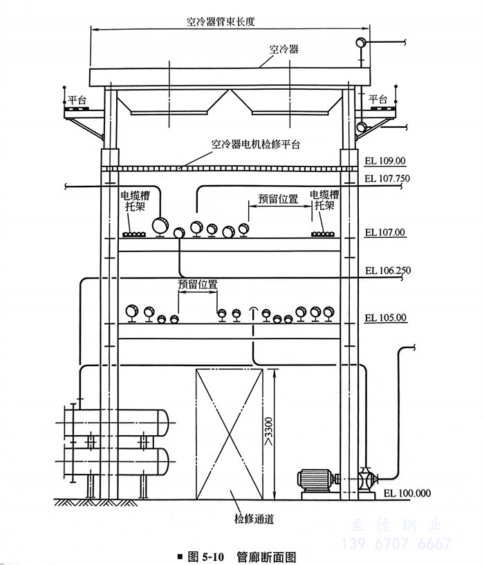
  一些大(da)、中型工(gong)程(cheng)項目中,通常先根據工(gong)藝(yi)系統圖和裝置(zhi)規劃圖,對需要占用管(guan)廊(lang)(lang)的管(guan)線、儀(yi)表電氣槽架和設備進行初步的布(bu)(bu)置(zhi)研究,綜合考(kao)慮管(guan)廊(lang)(lang)的層(ceng)數、層(ceng)高和預(yu)留裕量等因素,最終(zhong)確定最小管(guan)廊(lang)(lang)寬度(du)。管(guan)廊(lang)(lang)橫(heng)斷(duan)面是兩個(ge)立(li)柱的,寬度(du)一般不超過10m,如果超過10m,管(guan)廊(lang)(lang)橫(heng)斷(duan)面宜采用三個(ge)立(li)柱,如圖5-8中涂黑加(jia)粗部分(fen)的立(li)管(guan)廊(lang)(lang)。如果管(guan)廊(lang)(lang)上布(bu)(bu)置(zhi)空(kong)冷器,管(guan)廊(lang)(lang)寬度(du)需考(kao)慮空(kong)冷器管(guan)束長度(du),具體要求見(jian)本書空(kong)冷器布(bu)(bu)置(zhi)設計(ji)章節詳述。


8.jpg



典型管廊斷(duan)面(mian)圖(圖5-10)


10.jpg



大型綜合管廊典型布置設(she)計


  石(shi)化裝(zhuang)置(zhi)(zhi)大型(xing)綜合(he)管(guan)廊(lang)不同于裝(zhuang)置(zhi)(zhi)小管(guan)廊(lang),設計技(ji)術難(nan)度及工作量常常是整個(ge)工程裝(zhuang)置(zhi)(zhi)最大的之一。


  有的裝置(zhi)(zhi)內大型綜(zong)合管(guan)(guan)(guan)廊(lang)橫斷面有一(yi)百多根(gen)管(guan)(guan)(guan)線,平(ping)均口徑10"左右,管(guan)(guan)(guan)廊(lang)下面布置(zhi)(zhi)了泵、臥罐、閥組、減溫減壓器(qi)(qi)、換熱器(qi)(qi)、分析(xi)小屋等設(she)備(bei)實施,管(guan)(guan)(guan)廊(lang)側(ce)面布置(zhi)(zhi)了安(an)全閥、消(xiao)音器(qi)(qi)等設(she)備(bei),管(guan)(guan)(guan)廊(lang)頂部布置(zhi)(zhi)了空冷器(qi)(qi)、立(li)式塔(ta)、安(an)全閥、控制閥等設(she)備(bei)。這種裝置(zhi)(zhi)內大型綜(zong)合管(guan)(guan)(guan)廊(lang)有的設(she)計到(dao)約15m寬、40m高(gao)。


  有的(de)煉化(hua)一體化(hua)裝置(zhi)外大型綜(zong)合管(guan)(guan)廊橫斷面有200~300根(gen)管(guan)(guan)線,有的(de)管(guan)(guan)廊寬度達(da)50m左右(you)、高(gao)度達(da)40m左右(you)。


  大(da)(da)型綜合(he)管(guan)(guan)廊的(de)跨距有(you)(you)的(de)用(yong)9m,有(you)(you)的(de)用(yong)12m或18m。有(you)(you)的(de)全用(yong)混凝土的(de),有(you)(you)的(de)全用(yong)鋼結(jie)構(gou)的(de),有(you)(you)的(de)第1層用(yong)混凝土,以上層用(yong)的(de)是(shi)鋼結(jie)構(gou)。不同(tong)(tong)的(de)跨距、不同(tong)(tong)的(de)結(jie)構(gou)形式對管(guan)(guan)道設計程(cheng)(cheng)序和整(zheng)個工程(cheng)(cheng)項目的(de)造價、進度影響很(hen)大(da)(da),具(ju)體見(jian)《工業管(guan)(guan)道配管(guan)(guan)設計與工程(cheng)(cheng)應用(yong)》一(yi)書的(de)詳(xiang)述。




管廊頂部設(she)備布置設(she)計


  管(guan)廊頂部(bu)(bu)常布置空冷器、換熱器、立式(shi)(shi)設備(bei)、安全閥等設備(bei)。圖5-11是管(guan)廊頂部(bu)(bu)臥式(shi)(shi)設備(bei)的布置示意(yi)圖。有的工程把約15m高(gao)的干(gan)燥塔布置在了管(guan)廊頂部(bu)(bu)。


11.jpg







聯系方式.jpg