以(yi)某煉(lian)油項目裝置作為一個(ge)實例,列出了在已有(you)工廠(chang)中開(kai)展新裝置平面布置設計(ji)的步驟(zou)。通(tong)過例子展示了某些推薦的做法和布置設計(ji)的原(yuan)則。


一、裝(zhuang)置設備布置設計要求的一般(ban)資料


 當(dang)開始做裝置設(she)備平面布置圖(tu)時,需要從工程設(she)計(ji)項(xiang)目組及(ji)工藝、設(she)備、儀(yi)表、電氣、總圖(tu)等專業得到下(xia)列資料。


  ①. 新裝置區域附近現場資(zi)料(在(zai)某些設計單(dan)位,這些條(tiao)件由(you)總圖專業供給(gei)管道專業)。


   a. 工(gong)程(cheng)設計(ji)資(zi)料(包(bao)括新裝置區域現場平(ping)面圖,地上或地下設施,水、電(dian)、汽等公用(yong)工(gong)程(cheng)條件,選(xuan)用(yong)的防(fang)火規范、安全距離、噪聲控(kong)制的標(biao)準(zhun)等)。


   b. 常年最小頻率(lv)風(feng)向(xiang)。


   c. 裝置及進出管(guan)線建(jian)議的位置。


   d. 電纜(lan)進出口位置。


   e. 新裝置區附近的(de)道路、鐵路等交通條件(jian)及其詳圖(tu)。


   f. 裝置(zhi)的基準點位置(zhi)。


   g. 裝置的指北向。


   h. 檢修用吊車(che)的能(neng)力和尺寸。


   i. 消防車通道(dao)。


 ②. 從其他專(zhuan)業(ye)得到的資料。


   a. 工(gong)藝流程(cheng)圖或管道(dao)-儀表(biao)流程(cheng)圖。


   b. 設(she)(she)備(bei)(bei)(bei)表及設(she)(she)備(bei)(bei)(bei)尺(chi)(chi)寸。例(li)如:大型(xing)儲罐的(de)直徑、高度或(huo)容量;加(jia)熱(re)(re)爐的(de)外形(xing)(xing)尺(chi)(chi)寸、形(xing)(xing)式,煙囪是獨(du)立的(de)還是安裝在(zai)加(jia)熱(re)(re)爐頂部(bu),煙囪尺(chi)(chi)寸;壓(ya)縮機的(de)形(xing)(xing)式、外形(xing)(xing)尺(chi)(chi)寸,其密封油(you)、潤滑油(you)系(xi)統的(de)布置,輔助(zhu)設(she)(she)備(bei)(bei)(bei)的(de)布置;泵的(de)形(xing)(xing)式、外形(xing)(xing)尺(chi)(chi)寸,驅動(dong)機的(de)形(xing)(xing)式和要求;各種(zhong)非定型(xing)設(she)(she)備(bei)(bei)(bei)的(de)規(gui)格,包(bao)括塔(ta)器、換熱(re)(re)器、容器等。


   c. 設備安裝(zhuang)和(he)檢修要(yao)求(qiu)(qiu)。例如:塔(ta)的(de)(de)(de)最小安裝(zhuang)高(gao)度(du)(從(cong)地面(mian)至(zhi)塔(ta)底(di)封頭切線(xian)處(chu));有重力(li)流(liu)或(huo)固(gu)體卸料(liao)的(de)(de)(de)立式(shi)或(huo)臥(wo)式(shi)容器的(de)(de)(de)安裝(zhuang)標高(gao)要(yao)求(qiu)(qiu)(立式(shi)的(de)(de)(de)指底(di)部(bu)封頭切線(xian)處(chu)至(zhi)地面(mian)的(de)(de)(de)距(ju)離,臥(wo)式(shi)的(de)(de)(de)指儲槽底(di)部(bu)至(zhi)地面(mian)的(de)(de)(de)距(ju)離);換熱(re)器管(guan)束抽芯所需(xu)空間;壓縮機、泵或(huo)其他回(hui)轉設備拆卸和(he)更換零部(bu)件的(de)(de)(de)要(yao)求(qiu)(qiu)。


 ③. 空冷器(qi)(qi)形式和外形尺寸需(xu)要(yao)和工藝專業協商,因為空冷器(qi)(qi)通常(chang)安裝在(zai)管廊(lang)的上方,管廊(lang)的尺寸要(yao)和空冷器(qi)(qi)的規格相(xiang)適(shi)應。


  通常在管廊的(de)下(xia)方布置泵(beng),需(xu)要泵(beng)的(de)型號、規格、外形尺寸(cun)及泵(beng)的(de)吸入(ru)口(kou)(kou)和排出口(kou)(kou)管線連接(jie)尺寸(cun),如(ru)能(neng)提(ti)供樣本更好。



二、對工藝流程圖的研究


  作平面布(bu)置圖(tu)時,工藝流(liu)程圖(tu)已準備(bei)好(圖(tu)5-97)。


97.jpg


  請工藝設(she)計人員介紹(shao)裝(zhuang)置的工藝流程,并研究出(chu)直(zhi)接(jie)影響(xiang)設(she)備布置的若干結論(lun),例如下(xia)面所列內(nei)容。


98.jpg


  ①. 設備布置(zhi)(zhi)要順(shun)流程。原(yuan)油加(jia)料(liao)泵P-101要緊貼裝置(zhi)(zhi)西(xi)邊界管線進出口(kou)“A”。因(yin)為原(yuan)油管線從“A”處進入裝置(zhi)(zhi)(圖5-98)。

 

  ②. 泵應(ying)布置在相應(ying)的設備附近,以免泵吸入管(guan)線壓降(jiang)太大。


  ③. 要(yao)滿(man)足大型設(she)備布(bu)置(zhi)上的要(yao)求。如(ru)加熱爐F-101,要(yao)保證安全距離。另外(wai),燃(ran)料管線用分配臺分配,進口接管多(duo),故(gu)爐子周圍要(yao)有足夠(gou)的空(kong)間。


  ④. 關鍵管線(xian)(xian)(xian)的(de)(de)(de)柔(rou)性要(yao)求,在布(bu)置(zhi)階段請應力分(fen)析人員協助,例如:加熱(re)爐的(de)(de)(de)轉(zhuan)油管線(xian)(xian)(xian)是(shi)(shi)高溫(wen)合金管線(xian)(xian)(xian),要(yao)盡(jin)可能(neng)短(duan),且沒有袋形;T-101塔底(di)管線(xian)(xian)(xian)是(shi)(shi)高溫(wen)的(de)(de)(de),要(yao)考(kao)慮(lv)管線(xian)(xian)(xian)的(de)(de)(de)柔(rou)性以(yi)及備用泵的(de)(de)(de)熱(re)的(de)(de)(de)和(he)冷的(de)(de)(de)工況;進出汽提塔T-102和(he)T-103的(de)(de)(de)管線(xian)(xian)(xian)盡(jin)可能(neng)短(duan);汽提塔至火炬(ju)系統的(de)(de)(de)泄壓管線(xian)(xian)(xian)應盡(jin)可能(neng)短(duan)。


  ⑤. 設(she)備布置要考慮配管要求(qiu),例(li)如:從T-101至(zhi)E-115的架空管線(xian)應避(bi)免有袋(dai)形,在滿足(zu)管線(xian)柔(rou)性和塔膨脹的前提(ti)下,管線(xian)走向應簡單些;從E-115至(zhi)V-101的冷凝液管線(xian)應避(bi)免有袋(dai)形;從V-101至(zhi)壓(ya)縮機C-101的氣體(ti)管線(xian)盡可能短,避(bi)免有袋(dai)形。



三、平面布置圖的編(bian)制


 在(zai)完成工藝流程圖的(de)(de)研究后,進一步檢(jian)查新收到的(de)(de)各專業的(de)(de)資料是否有其(qi)他的(de)(de)要求。開始(shi)平面布(bu)置圖的(de)(de)設計。


 ①. 如(ru)工程沒有特殊的(de)要求,裝置(zhi)的(de)操作(zuo)通道、檢修通道及平(ping)臺的(de)設(she)置(zhi)等均按設(she)計(ji)規范(fan)確定(ding),下列(lie)各項在設(she)計(ji)中(zhong)應予遵循(xun)。


   a. 裝置檢(jian)修(xiu)時,需汽(qi)車(吊(diao)車)通過的主要(yao)檢(jian)修(xiu)通道(dao)上方(fang)最小凈空(kong)4.5m。


   b. 裝置四周環(huan)形(xing)道路上方最小(xiao)凈(jing)空(kong)5.0m,鐵軌(gui)上方最小(xiao)凈(jing)空(kong)5.5m(SH 3012-2000)。


   c. 泵的(de)操作(zuo)(zuo)溫(wen)度340℃或340℃以(yi)上時(shi),不能布置(zhi)在(zai)管廊(lang)下(xia),應(ying)布置(zhi)在(zai)距管廊(lang)外(wai)側3m以(yi)外(wai)。泵的(de)操作(zuo)(zuo)溫(wen)度在(zai)340℃以(yi)下(xia)時(shi),可布置(zhi)在(zai)管廊(lang)下(xia),必須(xu)考慮泵和驅動機(ji)的(de)檢修(xiu),泵上方最小凈空3m。


   d. 通常,空(kong)冷器布置在管廊上。


   e. 儲(chu)存烴類(lei)設備的支架(jia)及輸送烴類(lei)管(guan)道的管(guan)廊支柱(zhu)應(ying)進(jin)行防火保護的處理。


 ②. 要考慮運輸(shu)、安(an)裝(zhuang)設備的(de)位置。道(dao)路或通道(dao)要有(you)足夠的(de)空間,以(yi)滿足大(da)型設備的(de)運輸(shu)和(he)安(an)裝(zhuang)。


 ③. 進行初步的設備布(bu)置(zhi)。如圖5-98所示,用方塊的形(xing)式繪出管廊、加熱爐、蒸餾塔(ta)、框架(jia)、控制室等的位置(zhi)。這張布(bu)置(zhi)圖討論通過(guo),即可(ke)開始設計正式的平面布(bu)置(zhi)圖。


 ④. 繪制平面布置圖的步驟(zou)。


   a. 在裝置(zhi)設備布(bu)置(zhi)區域(yu)內確定管廊的布(bu)置(zhi)。


   b. 加熱爐的布置。


   c. 控制室的布(bu)置。


   d. 主要設(she)備的布置,包(bao)括分(fen)餾塔、空冷器(qi)、大型容器(qi)、壓縮機、泵(beng)等。


全(quan)部設備布置完成(cheng)后(hou),經校驗(yan),并適當調整,使用計算機繪出正式平(ping)面布置圖。



四、裝置(zhi)管廊的布(bu)置(zhi)


  裝置管廊的位(wei)置必須優先考慮,因為它會影響(xiang)設備的布置。


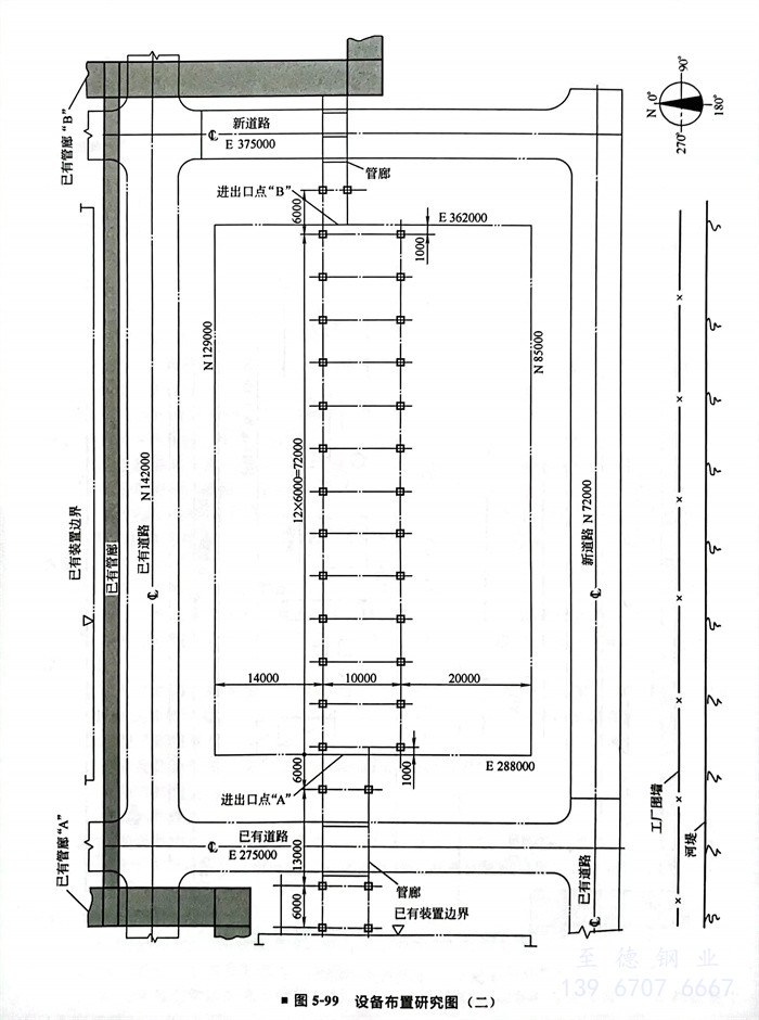
  圖5-99表示了新裝置(zhi)管廊(lang)的位置(zhi)與(yu)已有管廊(lang)的關系,下面敘述如何布置(zhi)管廊(lang)。


99.jpg


  ①. 首先(xian)應與土建協商(shang)確定結(jie)構(gou)(gou)材(cai)料,是使用鋼筋(jin)混凝土的還是鋼結(jie)構(gou)(gou)的。鋼筋(jin)混凝土的較為經濟。


  ②. 管(guan)廊的(de)柱(zhu)距6m,可(ke)滿足DN80和DN80以上的(de)管(guan)線(xian),不需要中間(jian)支承。管(guan)廊下兩個(ge)柱(zhu)距之間(jian)可(ke)布置兩臺中型的(de)泵。


  ③. 管(guan)(guan)廊(lang)(lang)(lang)(lang)的(de)寬(kuan)(kuan)度(du)(du),首先應(ying)明確管(guan)(guan)廊(lang)(lang)(lang)(lang)上(shang)(shang)是(shi)否安裝(zhuang)(zhuang)空冷器。若安裝(zhuang)(zhuang)空冷器,管(guan)(guan)廊(lang)(lang)(lang)(lang)的(de)寬(kuan)(kuan)度(du)(du)由空冷器的(de)管(guan)(guan)長(chang)決定(ding)。若管(guan)(guan)廊(lang)(lang)(lang)(lang)上(shang)(shang)沒有(you)空冷器,則(ze)作(zuo)完管(guan)(guan)線(xian)走向草(cao)圖(tu)后,根(gen)據(ju)管(guan)(guan)子排列(lie)寬(kuan)(kuan)度(du)(du),再(zai)預留(liu)20%的(de)裕量(liang)[全廠性管(guan)(guan)廊(lang)(lang)(lang)(lang)或管(guan)(guan)墩上(shang)(shang)(包括穿(chuan)越涵洞)應(ying)留(liu)有(you)10%~30%的(de)裕量(liang),裝(zhuang)(zhuang)置主管(guan)(guan)廊(lang)(lang)(lang)(lang)宜留(liu)有(you)10%~20%的(de)裕量(liang)],并考慮(lv)管(guan)(guan)廊(lang)(lang)(lang)(lang)下設(she)備檢修的(de)最小通道,確定(ding)管(guan)(guan)廊(lang)(lang)(lang)(lang)的(de)寬(kuan)(kuan)度(du)(du)。


  ④. 根據已(yi)有管(guan)廊(lang)(lang)(lang)的(de)位置,新裝置管(guan)廊(lang)(lang)(lang)東、西(xi)向布(bu)置較為(wei)合理。管(guan)廊(lang)(lang)(lang)的(de)柱子邊緣(yuan)距道(dao)路不應小于1m。


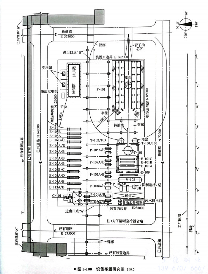
  ⑤. 加(jia)熱爐(lu)應放在常年最(zui)小頻率風向的下風側,位(wei)于管廊南(nan)(nan)側(圖5-100)。爐(lu)子(zi)所占面積較(jiao)大,總寬度為10m,其四(si)周(zhou)要(yao)設置(zhi)平臺,從裝置(zhi)南(nan)(nan)邊界線往北20m設管廊第一排柱子(zi)。


100.jpg




五(wu)、主要設備(bei)的布(bu)置


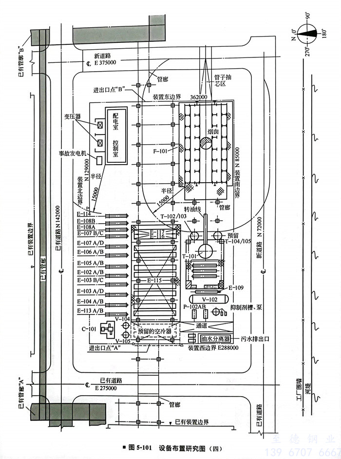
 1. 原油加熱爐(lu)F-101的(de)布置(圖5-101)


101.jpg

 

  原(yuan)油加熱(re)爐(lu)是(shi)長23m寬(kuan)10m的(de)箱式爐(lu),煙(yan)囪和加熱(re)爐(lu)組裝在一起。


  加熱(re)爐布置的要點如下(xia):


   ①. 位于常年(nian)最小(xiao)頻率風向的下風側。


   ②. 加(jia)熱爐周(zhou)圍保(bao)持15m的安全距(ju)離。


   ③. 對流段管(guan)束抽(chou)芯(xin)所需要(yao)的空間,在布(bu)置(zhi)圖(tu)上要(yao)表示出,抽(chou)芯(xin)區域內(nei)不得有任何障礙物。


   ④. 為(wei)便于施(shi)工安裝,加熱爐(lu)應(ying)位于主(zhu)要道路旁。


2. 控制室的布置(圖5-101)


  確定控(kong)(kong)(kong)制室的(de)(de)(de)(de)位置(zhi)(zhi)時應(ying)考慮安全(quan)性(xing),控(kong)(kong)(kong)制室應(ying)離逸(yi)出可燃性(xing)氣體的(de)(de)(de)(de)設備有15m的(de)(de)(de)(de)距離。在有的(de)(de)(de)(de)設計單(dan)位,控(kong)(kong)(kong)制室的(de)(de)(de)(de)布置(zhi)(zhi)是由總圖(tu)專業完成的(de)(de)(de)(de)。


3. 分餾塔T-101及有(you)關設(she)備(bei)的布置(zhi)(圖5-101)


  從加熱爐(lu)F-101到塔T-101的(de)轉油(you)線是一根關鍵(jian)管線,盡可能(neng)短些,因為管口(kou)是在爐(lu)子的(de)西面(mian),所以T-101在F-101的(de)西面(mian)是合理的(de)。


  汽(qi)提塔(ta)T-102 和(he)T-103 緊靠T-101。


  如圖5-101所示(shi),應按(an)工藝流程(cheng)和重力流要求布(bu)置設備。從T-101來的塔頂管線經換(huan)熱器(qi)E-101至(zhi)空冷器(qi)E-115,再(zai)經冷凝器(qi)E-110到儲槽V-101。


  在正式畫平面布置圖(tu)以前,先畫一(yi)張草圖(tu)。研(yan)究所有設備安裝(zhuang)和檢修(xiu)是否可(ke)行。


4. 空冷器的布置


  大型空冷器E-115放在中間(jian),便(bian)于從(cong)E-101來的管線(xian)敷(fu)設。


  管線(xian)的走向要和(he)流程一(yi)致(zhi)。因為煤(mei)油和(he)輕組分油管線(xian)在裝(zhuang)置東邊(bian)界進出口點(dian)“B”連(lian)接(jie),故空冷(leng)器E-116和(he)E-117放在E-115的東邊(bian)。


  便于擴建時預留空(kong)冷(leng)器的(de)(de)安(an)裝,預留的(de)(de)空(kong)冷(leng)器放在E-115的(de)(de)西邊。


5. 脫鹽水V-102及有關設備(bei)的(de)布(bu)置(圖5-101)


  V-102是一個大型設備(bei),直徑3m,切線至切線長度為(wei)11m,加上球(qiu)形封頭(tou)總長為(wei)14m。因為(wei)管(guan)廊至南邊(bian)(bian)界線的距(ju)離(li)是20m,可(ke)放置脫鹽器,故把V-102放在管(guan)廊的南邊(bian)(bian)。


  換熱器(qi)E-102、E-103和E-104布置在管廊的北面(mian),因為原油進料管線從(cong)西(xi)面(mian)進入(ru)(ru)后,經換熱器(qi)后進入(ru)(ru)脫鹽器(qi)。


  加熱爐(lu)加料泵P-102旁布置(zhi)抑(yi)制劑配(pei)制設(she)備(bei)。脫鹽器(qi)人口(kou)要加入抑(yi)制劑,配(pei)制設(she)備(bei)放在這(zhe)里(li),袋子拆卸方便。


6. 原油預熱器群的布置(zhi)(圖5-100和圖5-101)


  換(huan)熱(re)器E-105、E-106、E-107放在管廊的北面換(huan)熱(re)器區域內,和E-102、E-103、E-104排成一行。


  這些換(huan)熱(re)(re)器的(de)布置,不能妨(fang)礙換(huan)熱(re)(re)器周圍的(de)檢(jian)修通道,并(bing)要提供足(zu)(zu)夠的(de)管束抽(chou)芯空間(jian)。在管廊和換(huan)熱(re)(re)器之間(jian)要有足(zu)(zu)夠的(de)距離,以便于接(jie)近(jin)換(huan)熱(re)(re)器封(feng)頭(tou)。


  完(wan)成換(huan)熱器(qi)(qi)E-108、E-113和E-114的(de)定(ding)位:蒸汽(qi)發(fa)生器(qi)(qi)E-108布(bu)置在E-107的(de)東邊,它靠近泵P-107及相對地接近F-101。


  要符合流程圖的(de)流向,水冷(leng)卻器(qi)E-113緊靠E-104布(bu)置,使得(de)E-101來的(de)配管距離最(zui)短。冷(leng)卻器(qi)E-114位于E-108的(de)東邊(bian),在(zai)控制室(shi)最(zui)小安全距離之外。


7. 壓(ya)縮機C-101及附(fu)屬設備的(de)布(bu)置(圖(tu)5-100和圖(tu)5-101)


  壓(ya)縮機(ji)為往復式(shi)、兩段、電機(ji)驅動的雙(shuang)缸(gang)對(dui)置式(shi)壓(ya)縮機(ji),帶一、二(er)段冷(leng)卻器(qi),一臺,占地面積約5㎡。


  甲方沒(mei)有提出建造壓(ya)縮機廠房的(de)要(yao)求時,則壓(ya)縮機露天安裝(zhuang)。它和吸入罐V-104及V-105一(yi)起(qi)布置在(zai)裝(zhuang)置的(de)最西端。


  因為氣(qi)體和(he)二(er)段冷凝(ning)液管(guan)線在“A”處進出裝置,壓縮機(ji)C-101布置在裝置邊界線附近(jin)是很(hen)理想的。


8. 泵的布置


  圖5-100示出(chu)了(le)管廊下泵的布置。


  當管廊柱間距(ju)為6m時(shi),可安裝兩(liang)臺中型泵,并有供電纜的(de)足夠空間。泵的(de)排出口位(wei)于管廊柱中心(xin)線外側(ce)600mm(見圖(tu)5-102)。


  原油(you)加料泵P-101位于裝置西邊界管線(xian)進(jin)出口(kou)附近。


  泵(beng)P-103、P-105和P-108靠近有關設備T-101布置,分餾塔T-101及泵(beng)的吸入管線要(yao)有一(yi)定的柔性。


  泵P-104、P-106布置(zhi)在框架下(xia)。


9. 油水(shui)分離(li)器(qi)的布(bu)置(圖5-100)


  油水(shui)(shui)分離(li)器(qi)是把烴類和雨水(shui)(shui)、消防水(shui)(shui)分離(li),然后用泵將烴送(song)(song)至廢油罐(在裝置以外)處(chu)理,分離(li)器(qi)排出的(de)污水(shui)(shui)送(song)(song)至全廠(chang)污水(shui)(shui)處(chu)理系統。


  場地西南(nan)角的尺寸和位置布置油水(shui)分(fen)離(li)器(qi)合適,理由如(ru)下:裝置污(wu)水(shui)管要接至工廠已有污(wu)水(shui)總管,正好在油水(shui)分(fen)離(li)器(qi)的南(nan)面;廢油管線理想的引(yin)出位置在“A”點,離(li)加熱爐F-101的距離(li)最遠。



六、管線走(zou)向研究圖


 平(ping)面布置(zhi)圖(tu)供(gong)給各有關專業(ye)前,根據(ju)管(guan)道-儀表流程圖(tu)畫管(guan)線走向(xiang)圖(tu)以校(xiao)驗平(ping)面布置(zhi)圖(tu)。


  ①. 管線走向(xiang)圖的(de)用途有:決定管廊(lang)的(de)寬(kuan)度(du)和層數;校核設備布置和物(wu)料流(liu)向(xiang)。


  ②. 管(guan)線走(zou)向(xiang)圖由裝置(zhi)設備布置(zhi)設計者負責繪制(zhi)。管(guan)線走(zou)向(xiang)圖由一根(gen)(gen)根(gen)(gen)管(guan)線組成(cheng),管(guan)線走(zou)向(xiang)盡可能使距(ju)離縮短(duan),減少不必要的繞行。通(tong)常,管(guan)廊的走(zou)向(xiang)改(gai)變(bian)的,要改(gai)變(bian)標高(gao),圖上不必表示(shi)管(guan)子(zi)的上升和下降。


 管廊上的調(diao)節閥組、孔板和主要管線中的特殊配件應表示出位置,以便校核(he)所需要的空(kong)間。


 當管(guan)(guan)線走向圖完成后(hou)(hou),應(ying)校核管(guan)(guan)廊(lang)(lang)的(de)(de)寬(kuan)度(du),為今后(hou)(hou)的(de)(de)擴建,每一(yi)層管(guan)(guan)廊(lang)(lang)預(yu)留一(yi)定的(de)(de)余量。如果管(guan)(guan)廊(lang)(lang)的(de)(de)寬(kuan)度(du)超過10m,通常改為雙(shuang)層管(guan)(guan)廊(lang)(lang)。


  ③. 管線走向(xiang)圖應做(zuo)到如下各點。


   a. 管廊(lang)的寬度一般不超過10m。


   b. 只(zhi)有安(an)裝空冷器組的(de)(de)一段管廊需要雙層的(de)(de)。


   c. 為加(jia)熱爐F-101轉油線的支承(cheng),需設一單層管廊。


   d. 在管(guan)廊上(shang)敷設電(dian)氣和儀表電(dian)纜(lan),兩電(dian)纜(lan)槽之間要有1m的(de)凈(jing)距。


   e. 確(que)定(ding)管廊(lang)橫梁的標高。


   f. 在管(guan)(guan)線進出(chu)口(kou)“A”處(chu)若為單(dan)(dan)層(ceng)(ceng)管(guan)(guan)廊(lang)(lang)時(shi),需增(zeng)加管(guan)(guan)廊(lang)(lang)的(de)(de)寬(kuan)度,在管(guan)(guan)線進出(chu)口(kou)“B”處(chu)為單(dan)(dan)層(ceng)(ceng)管(guan)(guan)廊(lang)(lang)時(shi),也需增(zeng)加管(guan)(guan)廊(lang)(lang)的(de)(de)寬(kuan)度(去火炬干(gan)管(guan)(guan)除外)。


   g. 確定從控(kong)制(zhi)室來的電(dian)纜架(jia)的位置(zhi)。


   h. 確(que)定(ding)冷卻水、循環水在裝置進出口(kou)的位置。


   i. 完成裝置進出口管線表,包括管線尺寸和流動介質。



七、修改并完成建議的平面(mian)布置圖


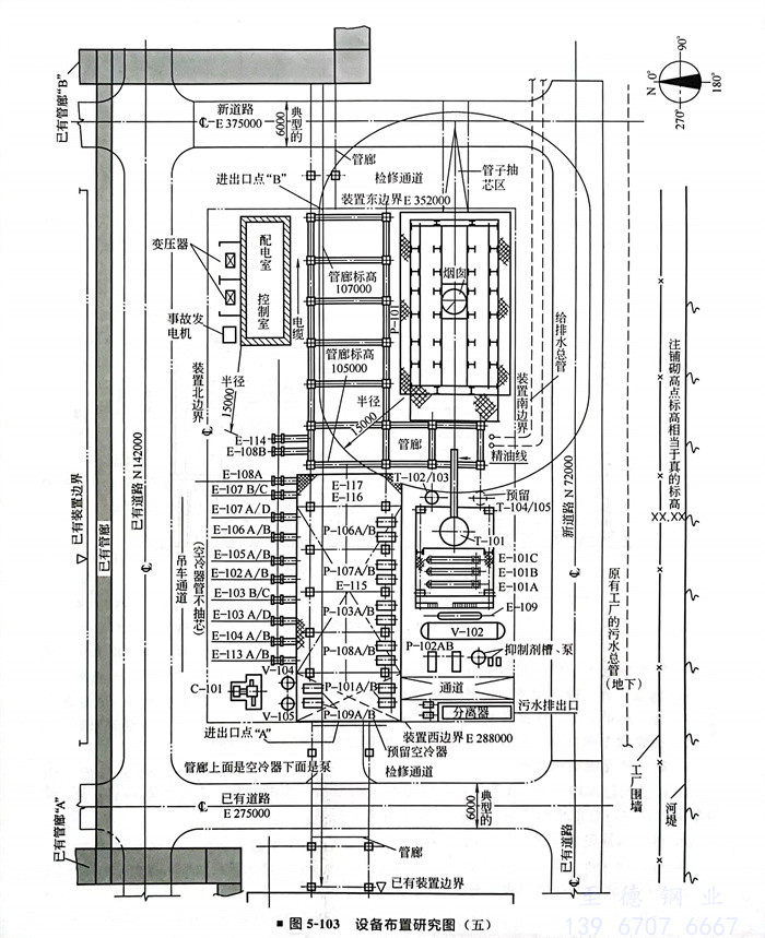
將建(jian)議的平面布置圖(tu)修(xiu)改了,把管(guan)(guan)廊北面的換熱(re)器群(qun)南移,使換熱(re)器殼體的一部分和封頭位(wei)于(yu)管(guan)(guan)廊下,因為附近沒(mei)有泵。圖(tu)5-103中還表(biao)示了空冷器管(guan)(guan)束抽芯(xin)所(suo)需的吊車通道。


103.jpg


  為(wei)了(le)保(bao)證裝置檢修時吊車能吊裝各種負(fu)荷,要校(xiao)核吊車的荷載能否達到要求。


  圖5-102是(shi)裝置的剖視圖,這張(zhang)圖需要(yao)與甲方及施工單(dan)位結合,它進一步驗(yan)證(zheng)了通道等(deng)檢修條件(jian)是(shi)否滿(man)足(zu)要(yao)求。


102.jpg


  圖5-104為用(yong)坐(zuo)標(biao)標(biao)注(zhu)(zhu)平面布置圖的(de)實(shi)例:建、構筑物的(de)尺寸要以坐(zuo)標(biao)標(biao)注(zhu)(zhu),設備的(de)安裝(zhuang)尺寸從有(you)坐(zuo)標(biao)的(de)柱(zhu)號(hao)標(biao)注(zhu)(zhu)相對(dui)尺寸。


104.jpg






聯系方式.jpg