浙(zhe)江至德鋼業有限公司技術人員(yuan)參加評(ping)審(shen)某設計(ji)時,發現某固(gu)定直爬梯(ti)沒有設置護(hu)籠,不符合規范要(yao)求。


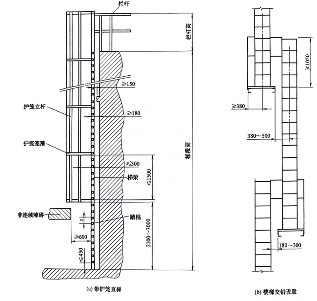
  按照SH/T 3011《石油(you)化工(gong)工(gong)藝裝置布置設(she)計規范》要求:高度(du)超過3m的直梯(ti)應設(she)置安全護(hu)(hu)籠,護(hu)(hu)籠下(xia)端(duan)距地(di)面(mian)或平(ping)臺(tai)不應小(xiao)于2.1m,護(hu)(hu)籠上端(duan)高出平(ping)臺(tai)面(mian),應與欄桿(gan)高度(du)一致。固定式(shi)鋼直梯(ti)示意(yi)圖見圖14.2。


  GB 4053.1《固定式鋼(gang)梯及平臺(tai)安全要(yao)(yao)求 第1部(bu)分:鋼(gang)直梯》的(de)要(yao)(yao)求如下。


   ①. 單段梯(ti)高(gao)宜(yi)不大于10m,攀(pan)登高(gao)度大于10m時宜(yi)采用多段梯(ti),梯(ti)段水平(ping)交錯布置(zhi),并(bing)設梯(ti)間(jian)平(ping)臺,平(ping)臺的(de)(de)垂直(zhi)間(jian)距宜(yi)為6m。單段梯(ti)及多段梯(ti)的(de)(de)梯(ti)高(gao)均(jun)應不大于15m。


  ②. 梯段(duan)高(gao)度大于3m時(shi)宜設置安全(quan)(quan)護籠。單梯段(duan)高(gao)度大于7m時(shi),應(ying)設置安全(quan)(quan)護籠。當攀登高(gao)度小(xiao)于7m,但梯子(zi)頂部在地(di)面、地(di)板或屋頂之上(shang)高(gao)度大于7m時(shi),也(ye)應(ying)設置安全(quan)(quan)護籠。


  ③. 當護(hu)籠(long)用(yong)于多段梯(ti)時(shi),每個梯(ti)段應與相(xiang)鄰的梯(ti)段水平交錯(cuo)并有(you)足夠的間距,設(she)有(you)適當空間的安全進、出引導平臺,以保護(hu)使用(yong)者的安全。





聯系方式.jpg