室內采暖(nuan)管道施工圖(tu)主要(yao)表示一棟建筑(zhu)物的(de)供暖(nuan)系統,主要(yao)包(bao)括平面圖(tu)、系統圖(tu)、詳圖(tu)。


1. 平面圖的主(zhu)要(yao)內容


 室內(nei)采暖平(ping)(ping)面(mian)圖主要表(biao)示管道、附(fu)件及散熱器在(zai)建筑物平(ping)(ping)面(mian)上的位(wei)置及相(xiang)互關(guan)系。


 a. 查明(ming)建筑物(wu)內散(san)熱器的(de)平面位置、種類、片(pian)數及散(san)熱器的(de)安裝形式、方式。


 各種(zhong)散熱器(qi)的規(gui)格及數量應(ying)按以下規(gui)定標(biao)注:


   ①. 柱型散熱器(qi)只標(biao)注數量;


   ②. 圓(yuan)翼型散熱器應(ying)標注(zhu)根數和排數;


   ③. 光(guang)排管散熱(re)器(qi)應標注管徑、長度、排數及型號(A型和B型)。


 b. 查明(ming)水(shui)平干(gan)管(guan)(guan)的(de)(de)布置方式、干(gan)管(guan)(guan)上的(de)(de)閥門、固定支架、補償器等(deng)的(de)(de)平面位置、型(xing)號、干(gan)管(guan)(guan)管(guan)(guan)徑。


 c. 通過立管編(bian)號(hao)查(cha)明系(xi)統立管的數量(liang)和平面布置(zhi)位置(zhi)。


 d. 在熱水采暖系(xi)統平面圖中應(ying)(ying)查(cha)明(ming)膨(peng)脹(zhang)水箱、自動排氣(qi)閥或集氣(qi)罐的位置(zhi)、型號、配管管徑(jing)及(ji)布置(zhi)。對(dui)車間蒸(zheng)汽采暖管道(dao)、應(ying)(ying)查(cha)明(ming)疏(shu)水器的平面位置(zhi)、規格尺寸、疏(shu)水裝置(zhi)組成等。


 e. 查(cha)明熱(re)媒(mei)入(ru)口及(ji)入(ru)口地(di)溝情況。當(dang)熱(re)媒(mei)入(ru)口無節點(dian)詳圖(tu)(tu)(tu)時,平(ping)面圖(tu)(tu)(tu)上一般將入(ru)口組成的設備如(ru)減壓(ya)閥(fa)、疏水器、分水器、分汽(qi)缸、除(chu)污(wu)器、控制閥(fa)、溫度(du)計、壓(ya)力(li)表、熱(re)量表等(deng)(deng)表示(shi)清楚,并(bing)標注(zhu)管(guan)徑、熱(re)媒(mei)來源、流向、熱(re)工參數等(deng)(deng)。如(ru)果熱(re)媒(mei)人口主(zhu)要配(pei)件與(yu)國家標準(zhun)圖(tu)(tu)(tu)相同時,平(ping)面圖(tu)(tu)(tu)則(ze)注(zhu)明規格、標準(zhun)圖(tu)(tu)(tu)號(hao)(hao),可(ke)按給定標準(zhun)圖(tu)(tu)(tu)號(hao)(hao)查(cha)閱。當(dang)熱(re)媒(mei)人口有節點(dian)詳圖(tu)(tu)(tu)時,平(ping)面圖(tu)(tu)(tu)則(ze)注(zhu)明節點(dian)圖(tu)(tu)(tu)的編號(hao)(hao)以備查(cha)閱。


2. 系(xi)統(tong)圖的主要內(nei)容


 采(cai)暖系(xi)統(tong)圖主要(yao)表示從熱(re)煤人(ren)口至出口的采(cai)暖管道,散熱(re)設備及附(fu)件(jian)的空間位置(zhi)和互相之間的關系(xi)。


  a. 查明管(guan)道系統中干管(guan)與立管(guan)之間(jian)及支管(guan)與散熱(re)器之間(jian)的(de)連接(jie)方(fang)式(shi)、閥門安裝(zhuang)位置及數(shu)量,各(ge)管(guan)道管(guan)徑(jing)、坡(po)度坡(po)向、水(shui)平干管(guan)的(de)標(biao)高、立管(guan)編號、管(guan)道的(de)連接(jie)方(fang)式(shi)。


  b. 查明散熱(re)器的規(gui)格型(xing)號、類型(xing)、安裝(zhuang)形(xing)式及方(fang)式與片數(中片和足片)、標高、散熱(re)器進(jin)場形(xing)式(現場組對或(huo)成(cheng)品)。


  c. 查明各種(zhong)閥(fa)件、附件及設備在管(guan)道系統中(zhong)的(de)位置,凡是(shi)注有(you)規格型號者(zhe),應與平面圖和材料明細表(biao)進行(xing)校對(dui)。


  d. 查明熱煤(mei)人口(kou)裝置中各種閥(fa)件、附件、儀表(biao)之間相對(dui)關系及(ji)熱媒的來源、流向、坡向、標高、管徑等。如有(you)節點詳圖(tu)時(shi),應查明詳圖(tu)編號及(ji)內容(rong)。


3. 詳圖的主要內容


  采(cai)暖施(shi)工(gong)(gong)圖(tu)的(de)(de)(de)詳圖(tu)包括標準(zhun)圖(tu)和節點圖(tu)兩種(zhong)。標準(zhun)圖(tu)是(shi)詳圖(tu)的(de)(de)(de)重要(yao)(yao)(yao)組(zu)成(cheng)部分。供水管、回水管與散(san)熱器之(zhi)間的(de)(de)(de)連接形式、詳細尺(chi)寸和安裝要(yao)(yao)(yao)求(qiu),均可用標準(zhun)圖(tu)表示。因此(ci),對(dui)施(shi)工(gong)(gong)技術人員來說,掌(zhang)握常用的(de)(de)(de)標準(zhun)圖(tu),熟知必要(yao)(yao)(yao)的(de)(de)(de)安裝尺(chi)寸和管道配件、施(shi)工(gong)(gong)做法,對(dui)于組(zu)織(zhi)施(shi)工(gong)(gong)活動,控制施(shi)工(gong)(gong)質(zhi)量是(shi)十(shi)分必要(yao)(yao)(yao)的(de)(de)(de)。


 采暖管(guan)道施工中常用標準圖(tu)的內容包括:


  a. 膨脹水箱、冷凝水箱的制作、配件與安裝。


  b. 分(fen)汽罐、分(fen)水器(qi)、集(ji)水器(qi)的構造、制作與安裝。


  c. 疏水器、減壓閥、減壓板的(de)組(zu)成形式和安裝方法。


  d. 散熱(re)器的連接(jie)與安裝要求。


  e. 采暖系統(tong)立管、支管、干管的連接形式。


  f. 管道(dao)支架、吊架的制作與安(an)裝。


  g. 集(ji)汽(qi)罐的(de)制作與安(an)裝。



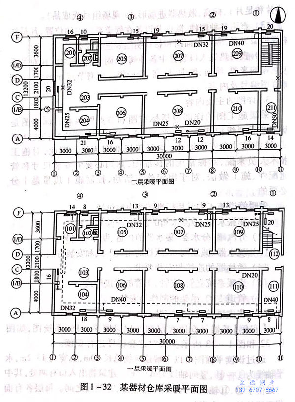
【實例】某器材倉庫底層(ceng)和二(er)層(ceng)采暖平面(mian)圖(tu)(tu)、系統圖(tu)(tu),如(ru)圖(tu)(tu)1-32和圖(tu)(tu)1-33所示。試對這套圖(tu)(tu)樣進行(xing)識讀。


32.jpg


  通過(guo)識讀平面圖可以(yi)了解(jie)建筑(zhu)物總(zong)長30m,總(zong)寬為(wei)(wei)13.2m,水平軸(zhou)線(xian)為(wei)(wei)①~?,豎(shu)向軸(zhou)線(xian)為(wei)(wei)A~F.建筑(zhu)物出人口有兩處,其(qi)中一處位于⑩、?軸(zhou)線(xian)之間(jian),另一處在(zai)C、①軸(zhou)線(xian)之間(jian)。每層各有面積(ji)不等的約11個房(fang)間(jian)。


 在(zai)建(jian)筑(zhu)物(wu)的兩(liang)個入口(kou)處,散(san)熱(re)器(qi)布置在(zai)門口(kou)墻壁上,其(qi)余的散(san)熱(re)器(qi)全部布置在(zai)各(ge)房間的窗臺(tai)下。散(san)熱(re)器(qi)的片(pian)數均(jun)注在(zai)散(san)熱(re)器(qi)圖例(li)上。


  通(tong)過查閱系統(tong)圖得知,本(ben)例為(wei)(wei)(wei)雙(shuang)管(guan)(guan)(guan)上分式熱(re)水(shui)采暖系統(tong),熱(re)媒干(gan)(gan)管(guan)(guan)(guan)管(guan)(guan)(guan)徑(jing)為(wei)(wei)(wei)DN50,標高為(wei)(wei)(wei)-1.40m,由南向(xiang)北穿過A軸(zhou)線外(wai)墻(qiang)進入111號房間,在(zai)(zai)A~?軸(zhou)線交角處登(deng)高,在(zai)(zai)總立(li)管(guan)(guan)(guan)上安(an)裝一(yi)控制閥門(men)(men)。總立(li)管(guan)(guan)(guan)登(deng)高至(zhi)二層6.00m,在(zai)(zai)天棚下沿墻(qiang)敷設(she)。干(gan)(gan)管(guan)(guan)(guan)管(guan)(guan)(guan)徑(jing)依(yi)次為(wei)(wei)(wei)DN50、DN40、DN32、DN25、DN20.本(ben)例共(gong)有8根立(li)管(guan)(guan)(guan),管(guan)(guan)(guan)徑(jing)均為(wei)(wei)(wei)DN20.立(li)管(guan)(guan)(guan)為(wei)(wei)(wei)雙(shuang)管(guan)(guan)(guan)式,采用三通(tong)和四通(tong)與(yu)散熱(re)器(qi)連接。回(hui)水(shui)干(gan)(gan)管(guan)(guan)(guan)的(de)起始端(duan)在(zai)(zai)103房間,標高為(wei)(wei)(wei)0.200m,沿墻(qiang)在(zai)(zai)底層地面(mian)拖地敷設(she),管(guan)(guan)(guan)道(dao)坡度(du)與(yu)回(hui)水(shui)流動方向(xiang)為(wei)(wei)(wei)同(tong)向(xiang)。回(hui)水(shui)干(gan)(gan)管(guan)(guan)(guan)在(zai)(zai)103房間過門(men)(men)處,返(fan)低至(zhi)地溝(gou)繞過大門(men)(men)。干(gan)(gan)管(guan)(guan)(guan)管(guan)(guan)(guan)徑(jing)依(yi)次為(wei)(wei)(wei)DN20、DN25、DN32、DN40、DN50.干(gan)(gan)管(guan)(guan)(guan)在(zai)(zai)111房間返(fan)低-1.400m 流至(zhi)室外(wai)管(guan)(guan)(guan)道(dao)。


  在供水、回(hui)水立(li)管上均(jun)設有(you)閥(fa)門,但①立(li)管上未裝,而在散熱器的支(zhi)管上安(an)裝閥(fa)門。


 由圖(tu)紙(zhi)得知,干管上(shang)設有(you)固定(ding)支(zhi)(zhi)架,供水干管上(shang)設有(you)4個,回水干管上(shang)設有(you)3個。管道活動支(zhi)(zhi)架通(tong)常在(zai)施工(gong)圖(tu)上(shang)是不顯示的,施工(gong)人員應(ying)按有(you)關規范要求,在(zai)現(xian)場選定(ding)和(he)設置。


 在(zai)識讀平(ping)面圖(tu)(tu)和系統圖(tu)(tu)的同時,需要查閱(yue)部(bu)分標準圖(tu)(tu),本例(li)中集氣罐(guan)的制作與安裝,如(ru)(ru)圖(tu)(tu)1-34所(suo)示,散(san)熱(re)器與立支管的連接,如(ru)(ru)圖(tu)(tu)1-35所(suo)示。


34.jpg