香蕉视频app破解码
香蕉視頻app破解碼:
首(shou)頁
香蕉視頻app破解碼:
關于我們
香蕉視頻app破解碼:
公司簡(jian)介
香蕉視頻app破解碼:
企業理念
香蕉視頻app破解碼:
核(he)心服務
香蕉視頻app破解碼:
榮譽證書(shu)
香蕉視頻app破解碼:
新聞(wen)中心
香蕉視頻app破解碼:
企業(ye)資訊(xun)
香蕉視頻app破解碼:
行業新聞
香蕉視頻app破解碼:
產品中心
香蕉視頻app破解碼:
不銹鋼(gang)管
香蕉視頻app破解碼:
不銹鋼管件
香蕉視頻app破解碼:
不(bu)銹鋼法蘭
香蕉視頻app破解碼:
預制件加(jia)工
香蕉視頻app破解碼:
車間設備
香蕉視頻app破解碼:
生產設備
香蕉視頻app破解碼:
檢測設備(bei)
香蕉視頻app破解碼:
質保體(ti)系
香蕉視頻app破解碼:
體系認證
香蕉視頻app破解碼:
售后服務
香蕉視頻app破解碼:
聯系我(wo)們
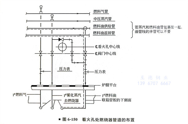
加熱爐管道布置設計工程實例
發布(bu)日期:2024-09-15 16:06:28 人氣:304
圓筒爐的管道布置實例(圖6-144~圖6-150)
箱式(shi)爐的管道布(bu)置實(shi)例(圖6-151)
香蕉視頻app破解碼:
常用腐蝕介質金屬選材參照表
香蕉視頻app破解碼:
鐵路槽車裝卸站的分類
猜你喜歡